South West Grounds Maintenance

South West offers both residential and commercial
services for winter & summer property maintenance.

Click here for details

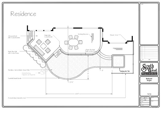
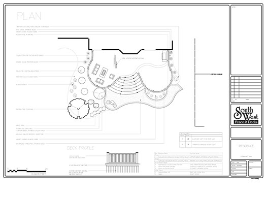
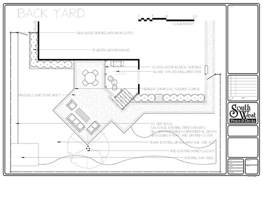
A South West Fence & Decks’ Designer will visit your home to assess your desire for an Outdoor Living Project, measure your yard, and develop a preliminary drawing of your new outdoor living space.  Back at our office, the designer will create a more detailed drawing for you with the aid of the most up to date design technology, including the use of Computer Aided Design (CADD).  A cost estimate will also be generated at this time.

Once completed, the Designer will then meet with you at our office or at your home to discuss the detailed drawing and cost estimate.  At this point, you may make the decision to book our team of professional installers to implement your new Outdoor Living Project and have the Consultation & Design Fee reimbursed to you on your final invoice, or if you plan on not having South West install your new Outdoor Living Project, a Consultation & Design Fee will be due at that time.

Average Consultation & Design Fee:  $400 - $800

Drawings

“The detailed CADD drawing South West had submitted in their proposal helped us tremendously

to visualize the final complete backyard design.”   Joe & Tammy Coleman, Sarnia